2 Camere 1 Bagni 1 Box/Posti auto 79 m2
Caratteristiche principali
Codice
V000638
Prezzo
235.000 EUR
Classe
B
Locali
4
Altre caratteristiche e accessori
Stato Immobile
Buono
Grado
Medio
Posizione
Centro
Panorama
Vista Giardino
Piano
Piano Terra
Orientamento
Sud Ovest
Lati Liberi
2
Giardino
No
Arredi
Solo Cucina
Tipo Soggiorno
Sala da Pranzo
Tipo Cucina
Abitabile
Riscaldamento
Autonomo
Tipo Riscaldam.
Caldaia
Tipo Impianto
Radiatori
Fonte Energetica
Metano
Infissi
PVC Doppio Vetro
Serramenti
Ottimo
Persiana
Tapparella PVC
Pavim. Giorno
Ceramica
Pavim. Notte
Ceramica
Pavim. Cucina
Ceramica
Pavim. Bagno
Ceramica
Cantina - Solaio
Cantina
Accessori
Doppi Vetri, Porta Blindata
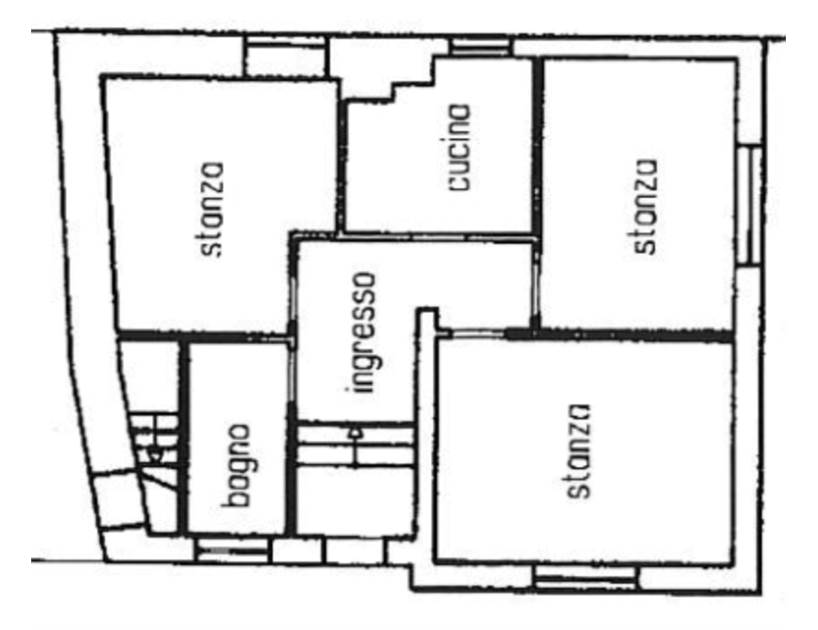
In zona centrale e servita, a pochi passi dal centro storico di Rovereto, proponiamo in vendita un appartamento di 79 mq, situato al piano rialzato di uno stabile tranquillo e ben tenuto.

L'immobile si presenta in ottime condizioni, recentemente ristrutturato con gusto, ed è così composto:
- luminoso soggiorno con cucina a vista
- due spaziose camere da letto matrimoniali
- bagno finestrato
- comodo disbrigo

Completano la proprietà una cantina e un posto auto esterno all'interno della corte condominiale.

Soluzione ideale per chi cerca comfort, tranquillità e vicinanza al centro.
Cookie preference